Expand view for photograph A rocky trail runs along a steep cliffside under a clear blue sky, with a wooden railing and lookout platform ahead, overlooking a rugged landscape.
Expand view for photograph A group of eight people stand side by side smiling in front of a modern two-story building, posing outdoors on a sunny day. They are casually dressed and standing on gravel.
Documentation efforts for Ship on the Desert in Guadalupe Mountains National Park occurred in 2017 and 2018 by Benjamin Ibarra-Sevilla’s Graphic Documentation Class. Over the course of two semesters, students conducted fieldwork, produced measured drawings, undertook large-format photography, and wrote the historical report.
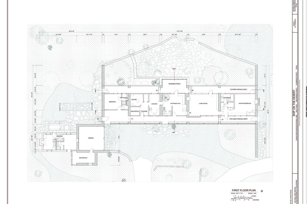
Designed in 1941 and built between 1941 and 1943, the Ship on the Desert is an early example of 20th-century modernism and is distinct for West Texas. The architecture firm Milliken & Bevin designed the structure for the petroleum geologist Wallace E. Pratt as his family’s summer home. The architects designed the building to blend into the surrounding mountainous landscape, using local limestone and panoramic windows that serve as the building’s most prominent character-defining features.
In 1959, Pratt donated the buildings, contributing structures, and 5,632 acres of land to the National Park Service, which was pivotal in establishing Guadalupe Mountains National Park. The National Park Service has owned Ship on the Desert since 1959 and has used it as a temporary residence for visiting researchers and scholars. The building is listed on the National Register under Criterion B and C at the State level for its association with Pratt and its distinct architecture.
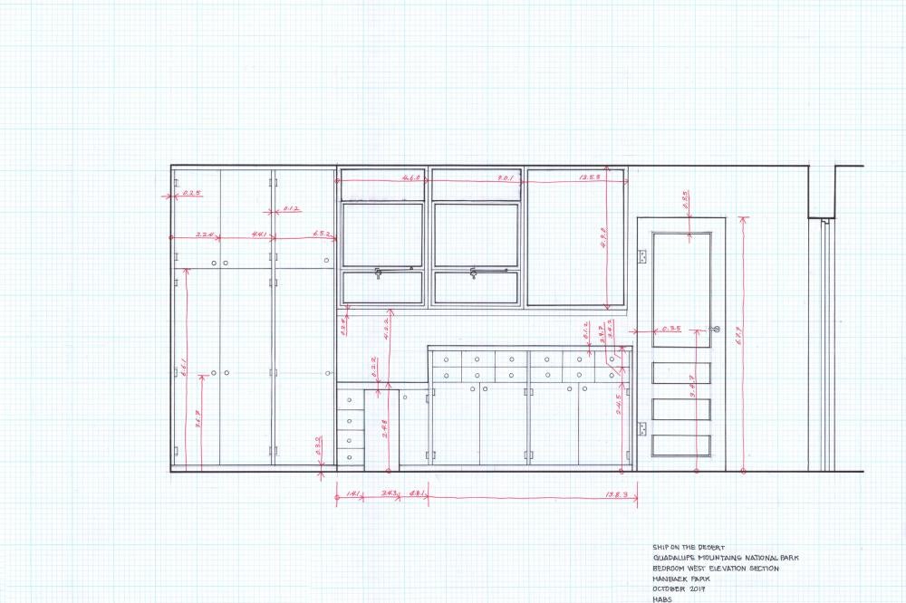
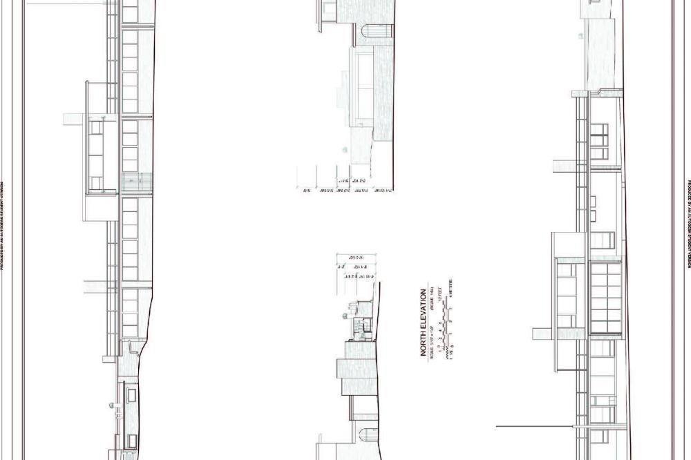
Using Historic American Building Survey (HABS) methodology, students created field drawings and took photos with a large-format film camera while on site. Then, the drawings and the photos were used to develop CAD drawings that document the structure, its character-defining features, and architectural details.
INSTRUCTOR
Benjamin Ibarra-Sevilla
STUDENTS
Karen Kincaid Brady
Rosa Fry
Meghan King
Hanbaek Park
Mogan Quirk
Michael Rahmatoulin
Rachel Rettaliata
Carlie Wallin