Expand view for photograph A collage of interior design elements featuring orange panels, modern ceiling lighting, glass-walled offices, geometric wall art, fabric and leather swatches, wooden furniture, and contemporary chairs in earthy tones.
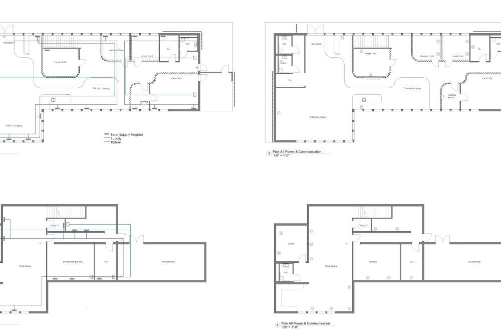
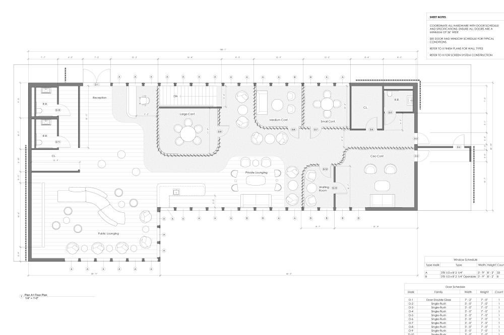
Expand view for photograph Two architectural floor plans of a building, one in black and white and one in color. They show rooms labeled reception, classrooms, and multipurpose areas with furniture layouts, doors, and paths. A legend and notes are included.
The basis of this project is centered around the Palantir Pavilion at the World Economic Forum held in Davos, Switzerland. Palantir, an American technology company specializing in data analytics, empowers its clients to address intricate challenges using real-world data. Each year, leaders and advocates come together to engage in open conversations and workshops focused on global concerns. As a result, the Palantir Pavilion focuses on maintaining a sense of privacy and security for its clients.
Palantir strives for innovation and originality. Keeping this in mind, the wooden panel system is designed to create dynamic moments with modular elements that enhance the users’ sense of perception. Such an approach shifts users' points of view according to their position within the space, evoking curiosity as they catch a glimpse into the meeting rooms.
The premise of this project is to create a space for both existing and potential clients. The spatial layout is designed to establish a distinction between public and private areas through the use of color and implied boundaries. As a result, different levels of privacy are created throughout the pavilion, which encourages connections and ease of communication between the different clientele.
2023-2024 Design Excellence Award Winner
Itzel Macedo & Nicole Mancera
Interior Design VI
Instructor: Marla Smith