Expand view for photograph Diagram showing building setbacks and daylighting concepts: Top row has three diagrams for lot setbacks and building height restrictions; bottom row has three diagrams illustrating sunlight angles and daylight distribution in building design.
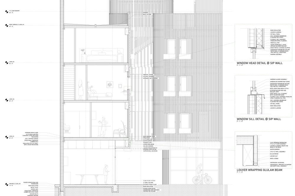
Expand view for photograph A detailed architectural section drawing of a multi-story building shows interior rooms, people, staircases, and balconies. Three circular insets on the right highlight exterior features and spaces around the building.
Cities expand in patterns of voids and fills. They have tiers of occupation, privacy, and demographics all structured around urban tissues that express a part to the whole.
The Sunset District, located 6 miles from the Pacific Coast, is part of San Francisco's history. It incorporates common building typologies of the bay window, seen in the traditional "Painted Ladies" architecture. The district is also part of San Francisco's present housing crisis. This extends to a social crisis, represented in the lack of accessible public spaces.
While infill is the densification of housing, the project infills by opening a gap in the site and organizing public and private programs around the dominant architectural element; the wall. While usually a wall represents a barrier, the curved wall constitutes a courtyard, allowing people, city, and thermal comfort to combine. Facing South, the courtyard provides light distributed uniformly, an amenity desired in winter. The North facade works as a windshield, protecting from dominant winds and noise pollution from Taraval Street, a leading commercial street in Sunset District.
2209 Taraval project is an urban amenity, dwellings, and a path of travel. It goes ownership back to the community to inhabit a third place where opportunities for diversity gather around the same space.
2023-2024 Design Excellence Award Winner
Paula Cano and Ciara Hackman
Integrative Studio
Instructor: Martin Haettasch